醫療製藥純化水係統設計與工藝流程要點解析
醫療製藥純化水係統設計與(yu) 工藝流程要點解析
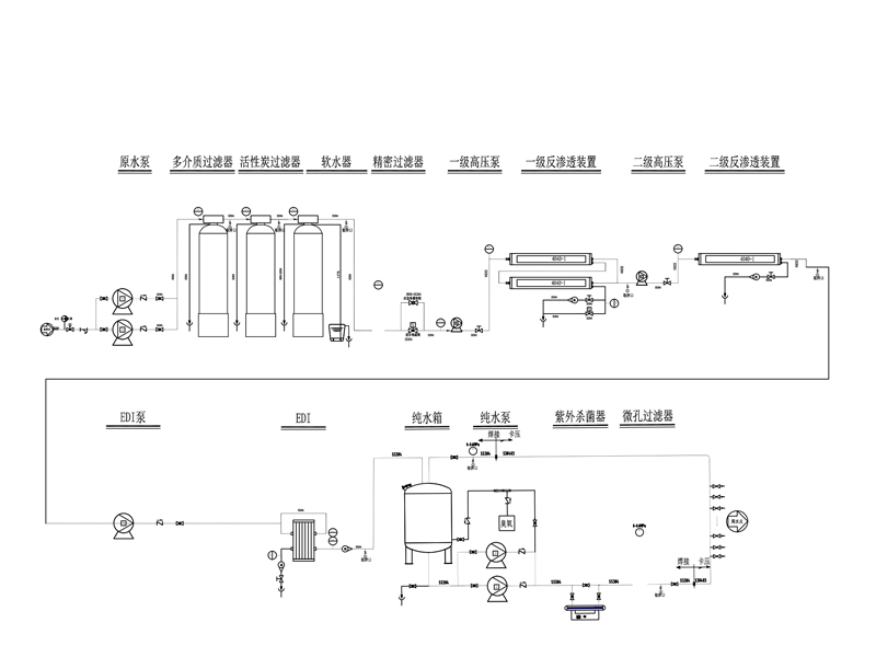
一、純化水係統關(guan) 鍵要點
1.原水進入RO膜,需進行預處理
滲源純化水係統的RO係統由保安過濾器(有效防止水中的顆粒物容易劃傷(shang) RO膜表麵,預防RO膜堵塞或穿孔)、阻垢劑單元(阻止鈣鎂離子容易對RO膜表麵過快結垢)、一級高壓泵、一級反滲透裝置、中間水箱、二級高壓泵、二級反滲透裝置、純化水儲(chu) 罐,及所需配備的檢測儀(yi) 表和管路組成。
2.消毒方式的選擇
滲源純化水係統對活性炭定期巴氏消毒(自動控製溫度),亦可對管道及純化罐巴氏消毒,防止微生物滋生。
3.采用水循環係統設計
滲源純化水係統采用自動水循環係統:由純化水儲(chu) 罐的液位來控製水機的工作狀態,RO裝置帶有自循環管路,在儲(chu) 罐液位滿,不需進水時,設備自動切換至循環運行狀態,保證係統內(nei) 水始終處於(yu) 流動狀態防止純化水靜產(chan) 出不良水質。
4.管道材質的選擇
滲源純化水係統針對醫療製藥用水設備對於(yu) 管道材質的嚴(yan) 格要求。根據我國GMP規定,純化水儲(chu) 罐和輸送管道所用材料應當無毒、耐腐蝕、不脫落。滲源采用SUS304不鏽鋼及SUS316L不鏽鋼管材。
5.自動化控製係統
滲源純化水係統整機配有中央控製係統和彩色液晶觸摸屏。可密碼登陸後進行各項參數設定,在線顯示電導率、溫度、壓力等數據,出現異常自動報警,係統日誌自動保存可供查詢,實現純化水製備過程的全自動操作控製和監控。
6.閥門設計
滲源純化水係統在多介質過濾前後、供水管入口、循環泵後、換熱器後、各個(ge) RO後及並流出、回水口等管道處都設置取樣閥,閥門和連接的密封材料使用PTFE或是EPDM材料,保安過濾器以後的閥門采用衛生型隔膜閥。
7.焊接工藝
滲源純化水係統采用純度99.99%氬氣焊接,且管道焊口做焊後酸洗鈍化處理。
二、滲源純化水係統工藝流程:

同類文章排行
- 工業純水設備各組成部件
- EDI與混床的區別?
- 滲源高端實驗室超純水機
- 超純水機實驗室用規格指
- 正滲透技術對於超純水機
- 如何有效防止加濕器結垢
- 工業超純水機配件品牌盤
- 自來水中餘氯對超純水機
- 工業反滲透純水機怎麽清
- 實驗室中央供水係統
